Venta
Ref: 2026/521
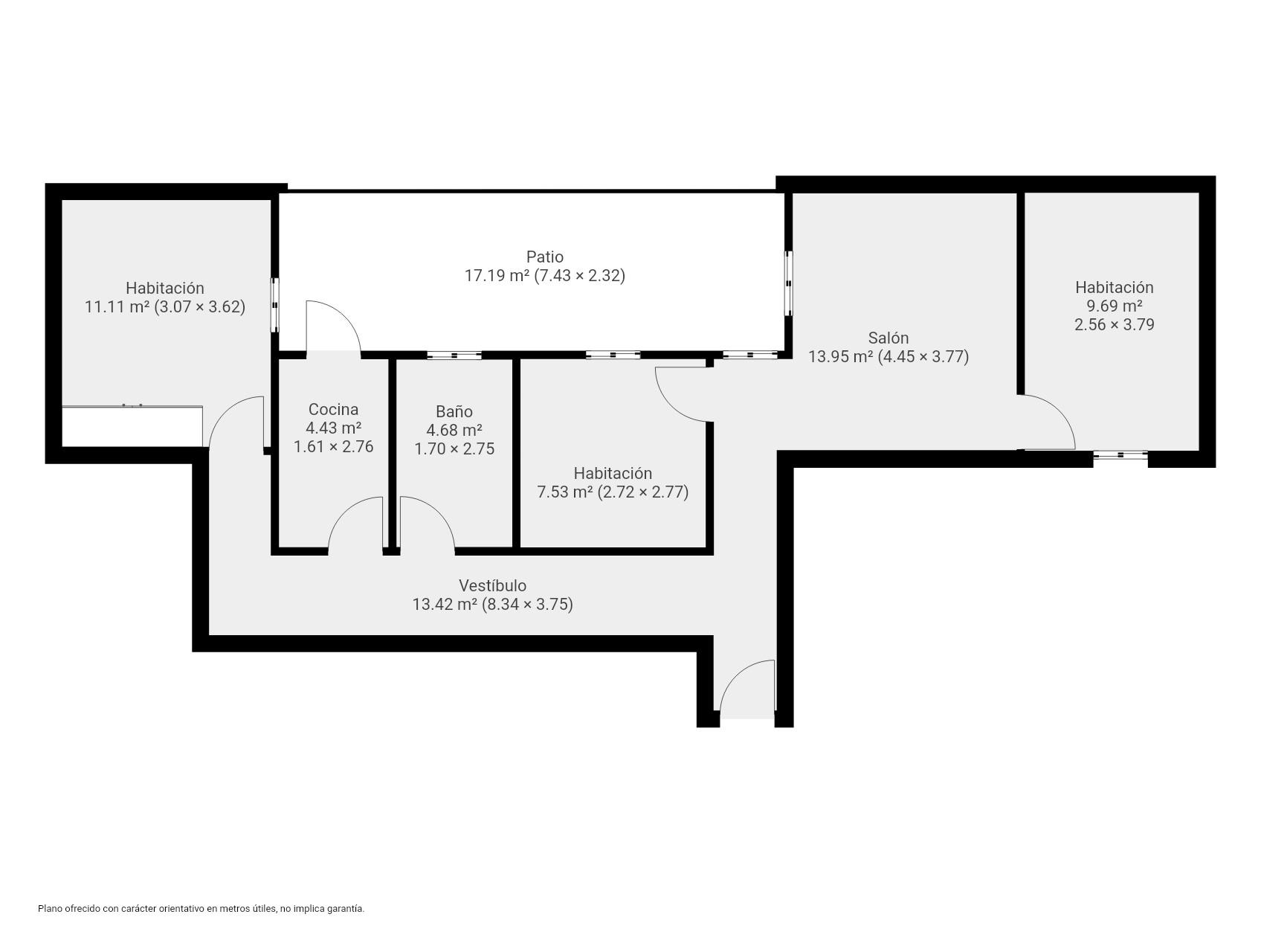
Piso con patio privado junto al Retiro – Barrio Ibiza, Madrid
Habitaciones
3
Baños
1
Planta
baja
Metros
99m2
Año construcción
1927
Ascensor
si
Garaje
no
Terraza
si
Trastero
no
Características del inmueble
Gastos comunidad
109€
Agua caliente
gas natural
Descripción del inmueble
Piso con patio privado junto al Retiro – Barrio Ibiza, Madrid
Te presentamos esta magnífica vivienda situada en una de las zonas más cotizadas de Madrid, en el barrio de Ibiza, distrito Retiro, a escasos metros del emblemático Parque del Retiro.
La propiedad cuenta con 99 m² construidos (aprox. 80 m² útiles) distribuidos en tres dormitorios, un baño completo, salón luminoso y cocina independiente. Se trata de un bajo interior muy tranquilo, ideal para quienes buscan vivir en el centro sin renunciar al silencio y la privacidad.
Uno de sus grandes atractivos es su fantástico patio privado de 17 m², un auténtico lujo en esta zona, perfecto para crear un espacio chill out, zona verde o comedor exterior.
El edificio dispone de ascensor y portero físico, lo que aporta comodidad y seguridad en el día a día. Además, existe la posibilidad de adquirir plaza de garaje cercana (no incluida en el precio).
¿Por qué elegir esta vivienda?
✔ Ubicación privilegiada junto al Retiro
✔ Patio privado exclusivo
✔ Finca con portero físico
✔ Zona con todos los servicios, comercios y excelente comunicación
Una oportunidad única tanto para vivir como para invertir en una de las áreas con mayor demanda y estabilidad de Madrid.
Precio
621.900€
